Información del proyecto

  • Denominación: Casa 1
  • Material: Isopanel
  • Mts2: 36
  • Dormitorios: 2
  • Baños: 1
  • Cocina y living: Integrados
  • Precio:

    U$S 20.000

Detalles

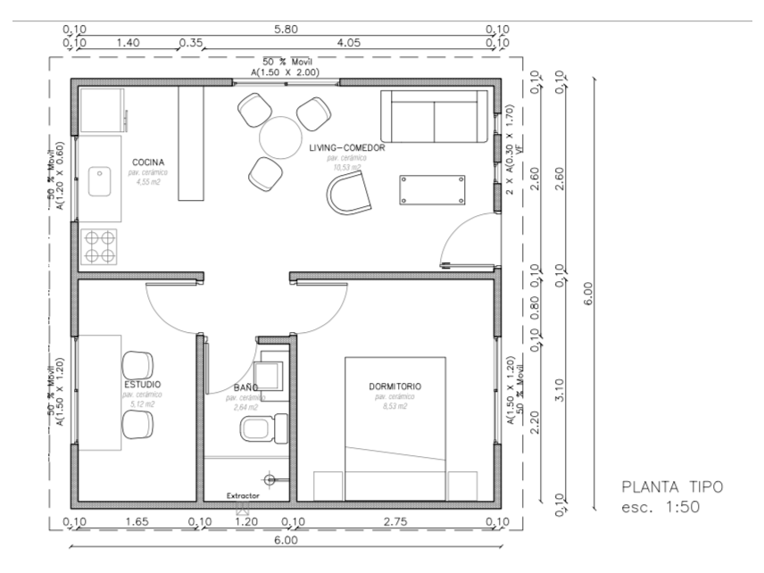
Área total 6 metros por 6 metros

Construcción de platea de 12cm de espesor

Paredes exteriores, divisiones y techo de Isopanel de 10cm de espesor

La casa se compone de los siguientes ambientes:

Una habitación de 2,90 por 2,90 metros
Una segunda habitación de 1,50 por 2,90 metros
Baño de 1,20 por 2,20 metros
Living comedor con cocina integrada de 3 por 7 metros

Aberturas (serie 20), puertas interiores enchapadas en madera

Zócalos de madera

Revestimiento de pisos con cerámica imitación madera o a elección, paredes de ducha y lavatorio de baño

Incluye mueble de baño BOUQUEN blanco, inodoro con mochila sanitaria completa Grifería FAS

Sanitaria completa Grifería FAS

Instalación eléctrica, cableado 3x2mm súper plástico, artefactos línea PRESTA, iluminación interior led, focos de iluminación en el exterior

Mueble de cocina de compensado con mesada acero inoxidable y aéreo

Cableado listo para conectar por UTE

Lista para conectar servicio de agua OSE

LLAVE EN MANO. Casa terminada y lista para habitar